×
Works
Studio
Contact
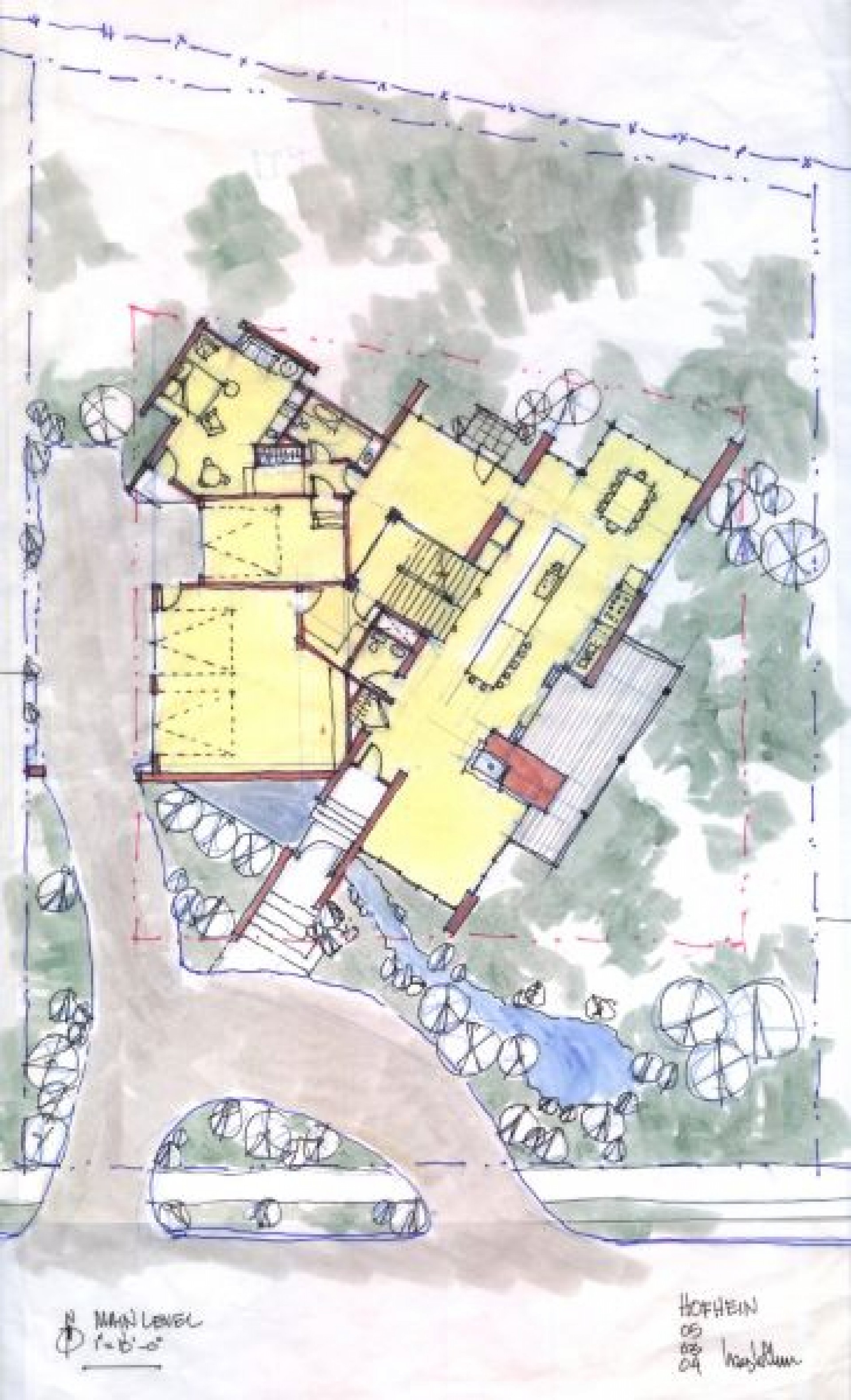
Little Cottowood Canyon Residence
Salt Lake City
,
UT
/
2005
New 4,200 residence at the mouth of Little Cottonwood Canyon.