×
Works
Studio
Contact
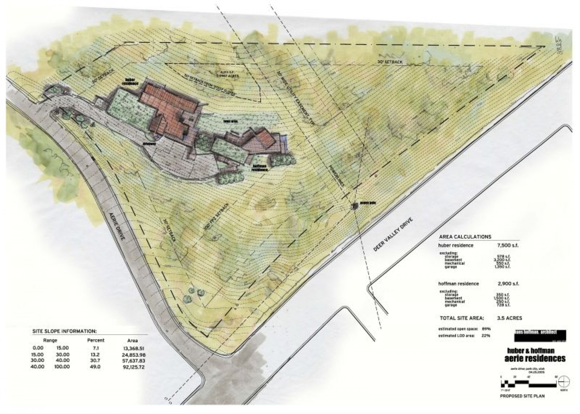
Aerie Drive
Park City
,
UT
/
2007
A 4,500 s.f. private residence, and a 9,800 s.f. private residential development.